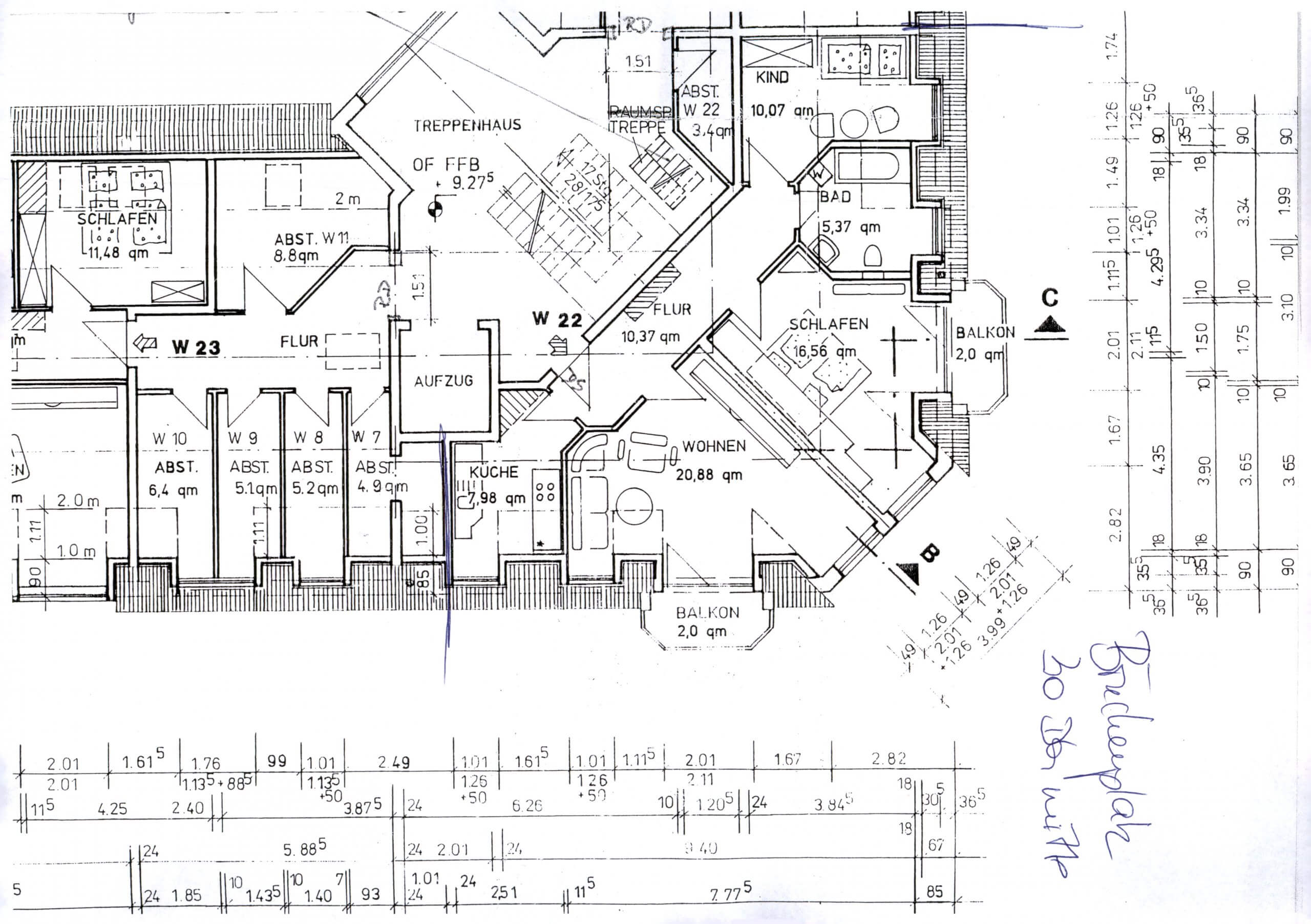
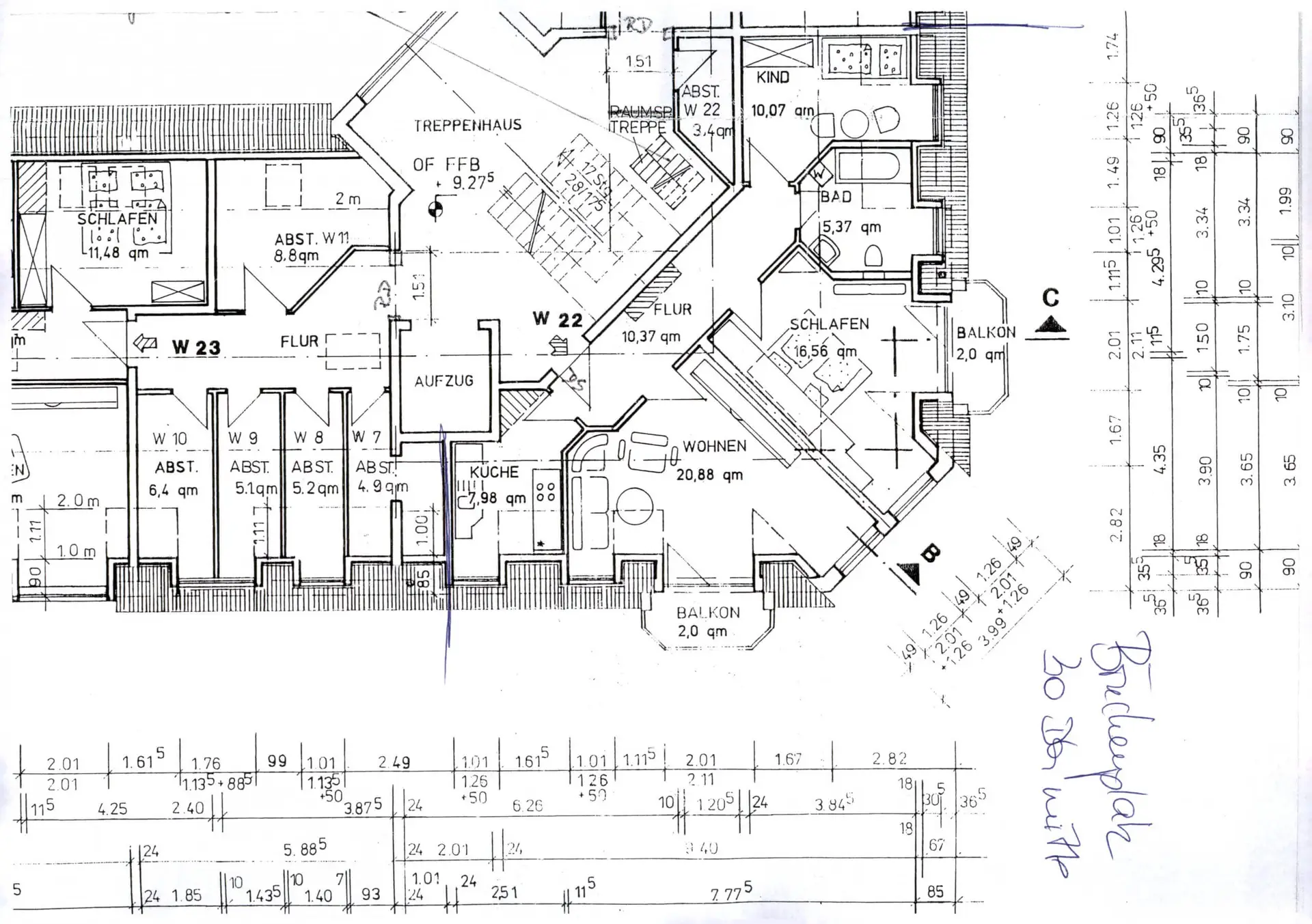
Die renovierte Sozialwohnung befindet sich im Dachgeschoss. Die Wohnung hat Küche, Wohnzimmer, Schlafzimmer, Kinderzimmer, Bad mit Wanne, Flur und 2 Balkone. Stadtzentrum ist fußläufig zu erreichen. Es befinden sich Einkaufsmöglickeiten in der Nähe und eine gute Verkehrsanbindung.






